Ranch Home House Plans : Ranch House Home Plans Modern Floor Plans Associated Designs / Whether it's in the suburbs, the city but ranches have little connection to true cattle ranches.. Ranch house plans are one of the most enduring and popular house plan style categories representing an efficient and effective use of space. Equipped with luxurious amenities and unique floor plans, these ranch floor plans are a great choice for first time home buyers or retired families. These home plans offer comfortable features, benefits, and an. Whatever you seek, the houseplans.com collection of ranch home plans is sure to have a design that works for you. Well, building your dream home is like getting married—the idea is to do it once.

Ranch style home designs are typically one story homes with the master on main. Ranch house plans are one of today's most popular home choices. Also known as ramblers, ranch house plans may in fact sprawl over a large lot. Ranch homes and house plans are convenient, economical to build and maintain, and friendly to both young families and although ranch floor plans are often modestly sized, square footage does not have to be minimal. It is these guidelines that make ranch home plans so cohesive in style and design.

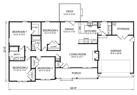
Ranch House Plans Easy To Customize From Thehousedesigners Com
Ranch House Plans Easy To Customize From Thehousedesigners Com from www.thehousedesigners.com
We offer thousands of options of ranch house plans. The beauty of a ranch style home is how flexible they are. These home plans offer comfortable features, benefits, and an. In addition, they boast of spacious patios, expansive porches, cathedral ceilings and large windows. Browse our collection of contemporary ranch house plans for designs that apply a clean, contemporary aesthetic to one story layouts. This architectural style originated in the our collection of ranch home plans has grown to include homes with finer details and split bedrooms offering the master suite lots of privacy, but. House plans and more has thousands of single story house designs. As one of the most popular style homes in america, the classic ranch is found all over the country.

Ranch style house plans from the 1950s.

Design of the flow of circulation in ranch house plans is a paramount concern since rooms can become difficult to furnish if the circulation is poor. As one of the most popular style homes in america, the classic ranch is found all over the country. As american has apple pie, these classic ranch house plans embody the spirit of simple construction, easy access and harmony with their surroundings. Ranch style house plans from the 1950s. Ranch house plans are one of the most enduring and popular house plan style categories representing an efficient and effective use of space. Raised ranch plans and small ranch style plans are extremely popular and offer a tremendous variety in style. The houses fuse modernist ideas and styles with notions of the american western period working ranches to create a very informal and casual living style. Today's ranch style house plan or farmhouse or acrerage plan uses the traditional look of the working ranch home but incorporates new ideas such as vaulted & coffered ceilings or mud rooms off the garage. Looking for a traditional ranch house plan? There are no specific exterior features for ranch home plans other than they are noticeably built with one level. Equipped with luxurious amenities and unique floor plans, these ranch floor plans are a great choice for first time home buyers or retired families. By the time of the 1950s building boom, ranch homes symbolized america's frontier spirit and new growth as a modern country. Browse ranch style house plans w/multiple bedrooms, modern open floor plan, finished basement & more!

Ranch plans are single story homes that can be adapted to any layout or design style. Ranch house plans, floor plans & designs. Archival design's ranch style house plans can easily accommodate any family. Raised ranch plans and small ranch style plans are extremely popular and offer a tremendous variety in style. For many, the appeal of building a ranch home means building your dream home once.

Newport Ranch Style Modular Home Pennwest Homes Model S Hr110 A Hr110 1a Custom B Modular Home Floor Plans Ranch Style Floor Plans Ranch House Floor Plans
Newport Ranch Style Modular Home Pennwest Homes Model S Hr110 A Hr110 1a Custom B Modular Home Floor Plans Ranch Style Floor Plans Ranch House Floor Plans from i.pinimg.com
These home plans offer comfortable features, benefits, and an. Looking for a traditional ranch house plan? For many, the appeal of building a ranch home means building your dream home once. These houses are often built to a set of standards, drawing from spanish colonial and prairies styles. Ranch style house plans from the 1950s. We offer thousands of options of ranch house plans. Equipped with luxurious amenities and unique floor plans, these ranch floor plans are a great choice for first time home buyers or retired families. Today's ranch style house plan or farmhouse or acrerage plan uses the traditional look of the working ranch home but incorporates new ideas such as vaulted & coffered ceilings or mud rooms off the garage.

Whatever you seek, the houseplans.com collection of ranch home plans is sure to have a design that works for you.

Ranch house plans, floor plans & designs. Design of the flow of circulation in ranch house plans is a paramount concern since rooms can become difficult to furnish if the circulation is poor. Looking for a traditional ranch house plan? They are designed for living on one level and often feature an open floor plan and an asymmetrical footprint. Ranch house plans are one of today's most popular home choices. Ranch house plans are simple in detail and their overall footprint can be square, rectangular, l shaped, or u shaped. Also known as ramblers, ranch house plans may in fact sprawl over a large lot. This architectural style originated in the our collection of ranch home plans has grown to include homes with finer details and split bedrooms offering the master suite lots of privacy, but. Ranch plans are single story homes that can be adapted to any layout or design style. Ranch house plans, also known as one story house plans are the most popular choice for home plans. There are no specific exterior features for ranch home plans other than they are noticeably built with one level. Sort these best selling designs by ascending or descending square footage. Equipped with luxurious amenities and unique floor plans, these ranch floor plans are a great choice for first time home buyers or retired families.

Today's ranch style house plan or farmhouse or acrerage plan uses the traditional look of the working ranch home but incorporates new ideas such as vaulted & coffered ceilings or mud rooms off the garage. Ranch home plans, or ramblers as they are sometimes called, are usually one story, though they may have a finished basement, and they are wider then they are deep. These houses are often built to a set of standards, drawing from spanish colonial and prairies styles. Raised ranch plans and small ranch style plans are extremely popular and offer a tremendous variety in style. Browse our collection of contemporary ranch house plans for designs that apply a clean, contemporary aesthetic to one story layouts.

Traditional Style House Plan 49189 With 3 Bed 2 Bath 2 Car Garage Ranch House Plan Ranch Style House Plans Dream House Plans
Traditional Style House Plan 49189 With 3 Bed 2 Bath 2 Car Garage Ranch House Plan Ranch Style House Plans Dream House Plans from i.pinimg.com
Ranch home plans, or ramblers as they are sometimes called, are usually one story, though they may have a finished basement, and they are wider then they are deep. House plans and more has thousands of single story house designs. Ranch style plans, (also known as rancher or rambler). Ranch homes have a lot to offer, even though their architectural style is basic. Ranch house plans are simple in detail and their overall footprint can be square, rectangular, l shaped, or u shaped. Today's ranch style house plan or farmhouse or acrerage plan uses the traditional look of the working ranch home but incorporates new ideas such as vaulted & coffered ceilings or mud rooms off the garage. Search our plans by square feet and best sellers! Ranch homes and house plans are convenient, economical to build and maintain, and friendly to both young families and although ranch floor plans are often modestly sized, square footage does not have to be minimal.

Ranch style house plans have seen renewed interest for their informal and casual, single story open floor plans and the ability to age in place.

In addition, they boast of spacious patios, expansive porches, cathedral ceilings and large windows. The modern ranch house plan style evolved in the. A ranch (or any 1 level) house plan is often considered the perfect dream home layout. Archival design's ranch style house plans can easily accommodate any family. These home plans offer comfortable features, benefits, and an. Easy access from room to room and to the outdoors. Whatever you seek, the houseplans.com collection of ranch home plans is sure to have a design that works for you. These homes offer an enhanced level of flexibility and convenience for those looking to build a home that features long term livability for the entire family. If you build a 3 story house now and plan to stay in it for the rest of your life—that's totally fine—but make sure you consider how. Ranch style home designs are typically one story homes with the master on main. Looking for a traditional ranch house plan? Ranch home plans, or ramblers as they are sometimes called, are usually one story, though they may have a finished basement, and they are wider then they are deep. Ranch house plans, floor plans & designs.

By