Home › Unlabelled ›
Traditional Bungalow House Plans - Traditional Colonial Cottage of the 1920s - 1921 American ... : Today's bungalows aren't much different than the traditional homes from an earlier time.
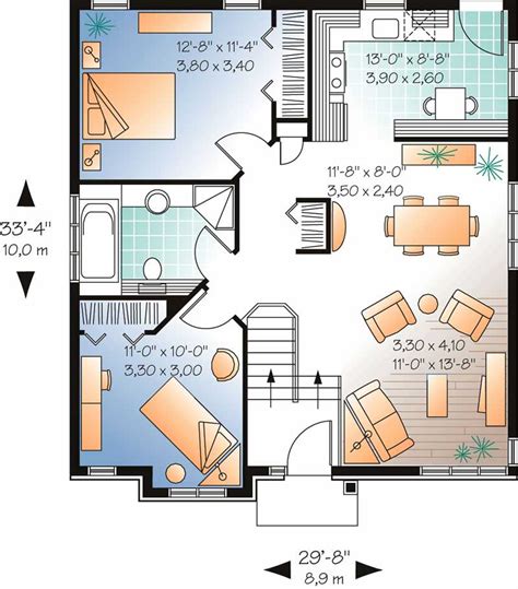
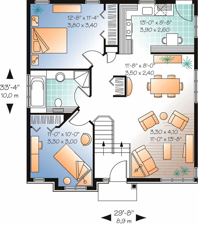
Traditional Bungalow House Plans - Traditional Colonial Cottage of the 1920s - 1921 American ... : Today's bungalows aren't much different than the traditional homes from an earlier time.. Many bungalow house plans have living, kitchen, and dining spaces within this common area. Traditional style house plan 42618 with 3 bed, 2 bath, 2 car garage. Bungalow house plans merge organic beauty with easy living spaces. This bungalow house plan gives you three bedrooms, two baths, an open layout, a kitchen island, decorative ceilings, and a mudroom with lockers. Search for 100s of house plans, each with several photos, for all types of dwellings including houses, apartments, townhouses and garage apartments (carriage houses).
Open floor plans with varying levels of square footage. See more of bungalow house plans on facebook. Bungalow house plans offer the comfort and coziness that you've always dreamed of for your family. Their layouts were affordable, and offered simple living with an artistic touch. Traditional facades with features like columns and front porches.
Building A Double Storey House with Traditional Bungalow ... from www.99homeplans.com The plans include the 4 elevations views, foundation plans, floor plans, cross section, staircase section, materials specifications and various construction details which aid in the house's construction. A bungalow design characteristically has shed dormers. It's a pleasure working with professional people like e plans team. Bungalows offered low cost, simple living quarters with an artistic touch to many americans getting by on modest means. Craftsman bungalow house plans bungalow homes are plentiful in character, yet simple in design. The best bungalow house floor plans. Find small 3 bedroom craftsman style designs, modern open concept homes & more! Plan for bungalow house & modern house two storey home floor plans.
Did you scroll all this way to get facts about bungalow house plans?
The plans include the 4 elevations views, foundation plans, floor plans, cross section, staircase section, materials specifications and various construction details which aid in the house's construction. A bungalow design characteristically has shed dormers. This bungalow house plan feels surprisingly upscale, from the spacious screened porch in back to the impressive ceiling treatments that draw the. Like page,free home design ideas daily. Their layouts were affordable, and offered simple living with an artistic touch. See more ideas about bungalow house plans, house plans, house. The following are house images for free browsing courtesy of pinoy eplans and pinoy house plans. Did you scroll all this way to get facts about bungalow house plans? With our home plans, we offer a wide range of bungalow home plans feature: A welcoming front porch greets entrants and captures. Bungalow house plans merge organic beauty with easy living spaces. This bungalow house plan gives you three bedrooms, two baths, an open layout, a kitchen island, decorative ceilings, and a mudroom with lockers. It's a pleasure working with professional people like e plans team.
Architectural features of bungalow house designs: They are perfect for small lots that are hard to build on. Large wide porches supported by tapered or paired columns. The plans include the 4 elevations views, foundation plans, floor plans, cross section, staircase section, materials specifications and various construction details which aid in the house's construction. Get expert advice from the house plans industry leader.
Traditional Colonial Cottage of the 1920s - 1921 American ... from i.pinimg.com House floor plans one story & 70+ traditional kerala style house plans. They are perfect for small lots that are hard to build on. Each plan includes the floor plan layout. This neighborhood house plan features 1.5 stories with the master suite upstairs along with a sitting room in a front facing dormer roof. This bungalow house plan gives you three bedrooms, two baths, an open layout, a kitchen island, decorative ceilings, and a mudroom with lockers. We selected 10 bungalow type houses, and single story modern house design, along with their size, details, floors plans and estimated cost. Architectural features of bungalow house designs: Pinoy eplans has an excellent and efficient.
From traditional, small bungalow house plans to modern, spacious and spectacular, we're sure to have a spec bungalow layout checking all the boxes for your new dream home †and then some.
Find small 3 bedroom craftsman style designs, modern open concept homes & more! This bungalow house plan feels surprisingly upscale, from the spacious screened porch in back to the impressive ceiling treatments that draw the. Modest footprints make bungalow house plans and the related prairie and craftsman styles ideal for small or narrow lots. Bungalow house plans are close in appearance to the craftsman and prairie styles of the arts & crafts movement. See more ideas about bungalow house plans, house plans, house. Open floor plans with varying levels of square footage. However, you'll notice some home plans have expanded. Their layouts were affordable, and offered simple living with an artistic touch. View bungalow house plans, along with lots of great color photos of the built home. This bungalow house plan gives you three bedrooms, two baths, an open layout, a kitchen island, decorative ceilings, and a mudroom with lockers. A bungalow design characteristically has shed dormers. Enjoy and thanks for visiting. Did you scroll all this way to get facts about bungalow house plans?
Bungalow house plans offer the comfort and coziness that you've always dreamed of for your family. Their layouts were affordable, and offered simple living with an artistic touch. Nakshewala.com has incorporated the detail, character of the bungalow into designs that reflect how we live today in modern time. See more of bungalow house plans on facebook. A second competitor that fused traditional with modern bungalow style, was the transitional bungalow.
California Craftsman Bungalow Old-Style Bungalow Home ... from upload.mexzhouse.com A welcoming front porch greets entrants and captures. Check out our bungalow house plans selection for the very best in unique or custom, handmade pieces from our architectural drawings shops. We selected 10 bungalow type houses, and single story modern house design, along with their size, details, floors plans and estimated cost. See more ideas about bungalow house plans, house plans, house. This bungalow house plan feels surprisingly upscale, from the spacious screened porch in back to the impressive ceiling treatments that draw the. They are perfect for small lots that are hard to build on. Bungalow house plans are close in appearance to the craftsman and prairie styles of the arts & crafts movement. Search for 100s of house plans, each with several photos, for all types of dwellings including houses, apartments, townhouses and garage apartments (carriage houses).
Many bungalow house plans have living, kitchen, and dining spaces within this common area.
Explore our bungalow home plans, then reach out to set up receiving house plan specs for the. Find small 3 bedroom craftsman style designs, modern open concept homes & more! They are perfect for small lots that are hard to build on. Check out our bungalow house plans selection for the very best in unique or custom, handmade pieces from our architectural drawings shops. See more ideas about bungalow house plans, house plans, house. Bungalow house plans merge organic beauty with easy living spaces. Bungalow homes originated as a smaller home that utilized space efficiently and created warm and cozy spots for communal ?open, flowing floor plans, particularly in common areas. We suppose there are people who might this house is representative of the many plans we've accumulated and republished here. Enjoy and thanks for visiting. Our bungalow house plans come in a variety of shapes, sizes and styles. View bungalow house plans, along with lots of great color photos of the built home. This neighborhood house plan features 1.5 stories with the master suite upstairs along with a sitting room in a front facing dormer roof. Plan for bungalow house & modern house two storey home floor plans.